Learning Punch! Software (R): Training, Tools & Tutorials for Version 22 - Windows - by Patricia Gamburgo
Take your home, landscape or commercial building project to the next level with the latest Punch! Software Version 22. Work like a pro with all new and improved features of the latest version.
    
        $49.99
        
            Availability:
            In stock
        
    
            SKU
        
47520
A new eBook dedicated to the latest Punch! Software Version 22 for Windows.
All the current and new features are detailed and explained.
- NEW eBook layout and features: this new edition contains more than 660 pages and more than 1500 color images (showing the new features, tutorials, screen guides, tables, examples, rendering results and screenshots as well as the updates), covering exclusively the new Punch! Software Version 22 for Windows. Topics and tools are linked on the screen using more than 2500 hyperlinks.
- NEW: Introducing Punchhelpers Buddy, a new helping resource that allows you to ask questions while you are in the eBook! You can ask for the desired word(s), topic or concept: Punchhelpers Buddy is always ready to help you with the answer.  
  
- NEW: Learn all the tools and techniques to create the best rendered images with the new rendering engine and tools 
   
    
- NEW: Learn how to create different types of rails for decks, stairs, mezzanines, etc.
- NEW: Use and combine the new light effects for different surfaces and view the images for day and night results.
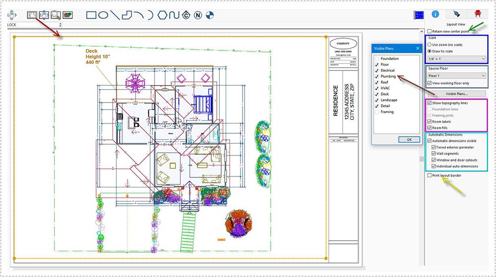
- NEW: Export and print your designs using the new Sheet Layout Mode Tool, including importing DWG and PDF files.
- NEW AND IMPROVED : As always, we cover all the topics and tools included in the program as well as more than 100 step by step tips, guides and tutorials, covering the most requested topics, including “360° Cube Map “, “How to Landscape a Picture”, “How to Create a Split-Level House”, “How to create a Walkout Basement”, “How to Print plans and elevations”
|  |  | 
|  |  | 
|  |  | 
|  |  | 
|  |  | 
|  |  | 
 
 
|  |  |  | 
Write Your Own Review
 
     
 
            